八王子市 諏訪町 新築一戸建て 37期 2号棟
11月11日 値下げ
2,780万円
中央線「西八王子」駅バス18分西東京バス「諏訪神社(八王子市)」停歩4分
中央線「八王子」駅バス27分西東京バス「諏訪神社(八王子市)」停歩4分
京王線「京王八王子」駅バス30分西東京バス「諏訪神社(八王子市)」停歩4分
【外観】~住宅性能表示取得 バス停徒歩4分 落ち着きのある住宅地内の新築一戸建て~
- 価格
- 2,780万円
- 間取り
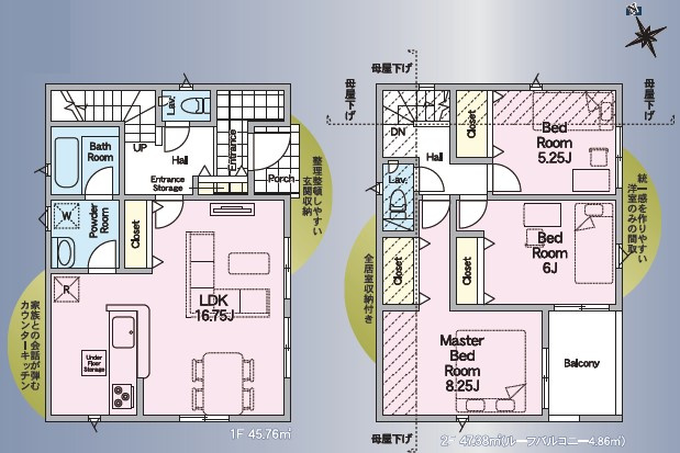
- 4LDK
- 土地面積
- 125.00㎡
- 建物面積
- 93.14㎡
- 築年月
- 2025年10月(予定)
-
バストイレ別
-
TVモニタ付きインターホン
-
カウンターキッチン
-
独立洗面台
-
浴室乾燥機

外観
外観- 販売戸数
- 3戸
- 総戸数
- 3戸
- 間取り / 詳細
- 4LDK
LDK 17.0帖 1室/洋室 7.7帖 1室/洋室 5.8帖 1室/洋室 5.2帖 1室/洋室 4.5帖 1室 - 向き
- 南東
- 建物面積(坪数)
- 93.14㎡(28.17坪)
- 土地面積(坪数)
- 125.00㎡(37.81坪)
- 建ぺい率 /
容積率 - 40%/80%
- 築年月
- 2025年10月(予定)
- 駐車場 /
月額料金 - 有(3台) 0円
- 土地権利
- 所有権
- 土地
(敷金 / 保証金) - - / -
- 建物構造
- 木造 / 2階建
- 傾斜地部分面積
- -
- 路地状敷地
- -
- 私道負担面積
- -
- セットバック
- 無
- 高圧線下面積
- -
- 施工会社
- -
- 用途地域
- 第一種低層住居専用
- 地目 / 地勢
- 宅地 / 平坦
- 接道状況
- 一方(南東 公道 5.0m)
- 国土法届出要否
- 不要
- 都市計画
- 市街化区域
- 総区画数 /
販売区画数 - 3区画/3区画
- 現況
- 未完成
- その他
法令上の制限 - 景観法/航空法/宅地造成及び特定盛土等規制法/高度地区
- 取引態様
- 仲介
- 引渡し
- 相談
- 取引条件の
有効期限 - 2025年11月18日
- 設備条件
-
- 陽当り良好 / 閑静な住宅地 / 建設住宅性能評価書付 / 住宅性能保証付 / 眺望良好 / 新婚さん向け / ファミリー向け / 仲介手数料無料 / フローリング / バルコニー / 都市ガス / 公営水道 / 公共下水 / 24時間換気システム / 電気有 / 駐車2台可 / 駐車3台可 / 耐震構造 / システムキッチン / カウンターキッチン / バス・トイレ別 / 追焚機能浴室 / 浴室乾燥機 / 温水洗浄便座 / 洗面台 / 洗髪洗面化粧台 / トイレ2ヶ所 / 浴室1坪以上 / 独立洗面台 / 床下収納 / 収納豊富 / TVモニタ付インターホン / 複層ガラス / ディンプルキー
- 設備(その他)
-
-
-
- 物件番号
- 98154146
- 管理コード
- -
- 建築確認番号
- 第R07SHC113184号
- 情報更新日
- 2025年11月11日
- 次回更新予定日
- 2025年11月18日
- 備考
- 八王子市内に特化して様々な物件をご紹介しております。
仲介手数料最大無料が弊社の強みです。
戸建・マンション・土地探し等お任せ下さい!
●日時・ご案内方法
お客様のご希望の日時をお伝え下さい。定休日も対応可能です。
お迎えやお待ち合わせ・ご来店等、対応可能です。
●住宅ローンその他、資金計画の各種ご相談もお気軽にどうぞ。
●お子様連れ大歓迎!!
●店舗前にお客様用駐車場がございます。 -
保育園
諏訪保育園
110m(2分)
-
幼稚園
八王子桑の実幼稚園
407m(6分)
-
警察
諏訪交番
432m(6分)
-
ドラッグストア
ドラッグセイムス大楽寺店
442m(6分)
-
コンビニエンスストア
セブンイレブン 八王子大楽寺店
579m(8分)
-
小児科
みのり会 加地医院
628m(8分)
-
保育園
さつき保育園
736m(10分)
-
スーパー
オザム大楽寺店
769m(10分)
-
中学校
四谷中学校
820m(11分)
-
ドラッグストア
ウエルシア八王子弐分方店
955m(12分)
-
郵便局
元八王子郵便局
976m(13分)
-
市役所・区役所
元八王子事務所
990m(13分)
-
小児科
福田医院
1053m(14分)
-
ディスカウントショップ
業務スーパー四谷店
1055m(14分)
-
小学校
八王子市立上壱分方小学校
1259m(16分)
-
幼稚園
元八王子幼稚園
2389m(30分)
-
駅
西八王子駅
3681m(47分)
-
駅
高尾駅
5057m(64分)
- 月々の支払額
- 9.6円
- 購入希望物件価格
-
万円
- 頭金
-
万円
- 金利
-
%
- 返済額(ボーナス1回分)
-
万円
- 返済期間
-
年
物件の特徴
セールスポイント
~~こちらの物件は、弊社でなら仲介手数料無料でご紹介可能です~~
ポイント
◎住宅性能表示取得 ◎南東向き ◎4LDK ◎並列3台駐車可能 ◎整形地
担当者のコメント
パノラマ画像
基本情報
設備条件
その他
八王子市 諏訪町 新築一戸建て 37期の他の物件
周辺施設
支払いシミュレーション
※ボーナスは自動で年2回分で計算されます。
近隣の物件
八王子市 諏訪町 新築一戸建て 37期
2,780万円
-
4LDK(93.14㎡)


秋山 里織
駅からは少し距離がありますが、陣馬街道へ出るとバス便豊富で西八王子駅・八王子駅へのアクセスがしやすい立地。並列3台駐車可能カースペース付き、南東向き4LDKの間取り。スーパー・コンビニ・ドラッグストアが徒歩10分圏内に揃い、生活のしやすい住環境です。