八王子市 大谷町 中古戸建て
10月7日 値下げ
3,499万円
八高線「北八王子」駅徒歩13分
京王線「京王八王子」駅徒歩27分
中央線「八王子」駅バス10分西東京バス「団地入口(八王子市)」停歩3分
【外観】~北八王子駅徒歩13分 内装リフォーム済 南道路に接道、陽当たり良好です~
- 価格
- 3,499万円
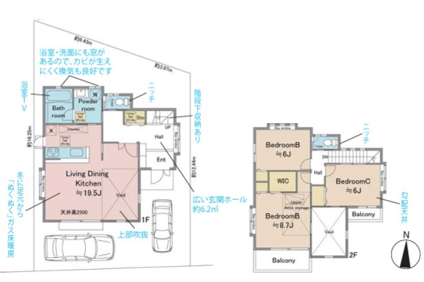
- 間取り
- 3LDK
- 土地面積
- 140.06㎡
- 建物面積
- 101.64㎡
- 築年月
- 2010年4月(築15年)
-
バストイレ別
-
カウンターキッチン
-
独立洗面台
-
浴室乾燥機

外観
リビング
風呂
洋室
バルコニー- 販売戸数
- 1戸
- 総戸数
- 1戸
- 間取り / 詳細
- 3LDK
LDK 19.5帖 1室/洋室 8.7帖 1室/洋室 6.0帖 2室 - 向き
- 南
- 建物面積(坪数)
- 101.64㎡(30.74坪)
- 土地面積(坪数)
- 140.06㎡(42.36坪)
- 建ぺい率 /
容積率 - 40%/80%
- 築年月
- 2010年4月(築15年)
- 駐車場 /
月額料金 - 有(2台) 0円
- 土地権利
- 所有権
- 土地
(敷金 / 保証金) - - / -
- 建物構造
- 木造 / 2階建
- 傾斜地部分面積
- -
- 路地状敷地
- -
- 私道負担面積
- -
- セットバック
- 記載なし
- 高圧線下面積
- -
- 施工会社
- -
- 用途地域
- 第一種低層住居専用
- 地目 / 地勢
- 宅地 / -
- 接道状況
- 一方(南 6.0m)
- 国土法届出要否
- 不要
- 都市計画
- 市街化区域
- 総区画数 /
販売区画数 - 1区画/1区画
- 現況
- 空家
- その他
法令上の制限 - 景観法/航空法/高度地区
- 取引態様
- 仲介
- 引渡し
- 即時
- リフォーム
-
-
2025年5月
キッチン トイレ 壁 床 給湯器、ハウスクリーニング - 取引条件の
有効期限 - 2025年12月12日
- 設備条件
-
- 陽当り良好 / 閑静な住宅地 / リフォーム済 / 住宅性能保証付 / 眺望良好 / 新婚さん向け / ファミリー向け / 仲介手数料無料 / フローリング / バルコニー / 出窓 / プロパンガス / 公営水道 / 公共下水 / 24時間換気システム / 電気有 / 照明器具付き / 駐車2台可 / 食器洗い乾燥機 / システムキッチン / カウンターキッチン / バス・トイレ別 / 追焚機能浴室 / 浴室乾燥機 / 温水洗浄便座 / 洗面台 / 洗髪洗面化粧台 / トイレ2ヶ所 / 浴室1坪以上 / 独立洗面台 / 床下収納 / 収納豊富 / 複層ガラス / ディンプルキー
- 設備(その他)
-
-
-
- 物件番号
- 97365873
- 管理コード
- -
- 建築確認番号
- -
- 情報更新日
- 2025年11月28日
- 次回更新予定日
- 2025年12月12日
- 取扱会社
-
- 浅川不動産株式会社
- 東京都八王子市小門町8-37
- TEL:0120-915-174
- 東京都知事 (3) 第97187号
- 全日本不動産協会
- 備考
- 八王子市内に特化して様々な物件をご紹介しております。
仲介手数料最大無料が弊社の強みです。
戸建・マンション・土地探し等お任せ下さい!
●日時・ご案内方法
お客様のご希望の日時をお伝え下さい。定休日も対応可能です。
お迎えやお待ち合わせ・ご来店等、対応可能です。
●住宅ローンその他、資金計画の各種ご相談もお気軽にどうぞ。
●お子様連れ大歓迎!!
●店舗前にお客様用駐車場がございます。 -
コンビニエンスストア
セブンイレブン 大谷店
230m(3分)
-
郵便局
八王子富士見郵便局
552m(7分)
-
警察
八王子警察署北八王子交番
738m(10分)
-
保育園
愛光大和田保育園アネックス
869m(11分)
-
中学校
第一中学校
921m(12分)
-
総合病院
東海大学医学部付属八王子病院
937m(12分)
-
保育園
石川保育園
959m(12分)
-
小学校
第八小学校
962m(13分)
-
駅
北八王子駅
1000m(13分)
-
ショッピングセンター
フォレストモール八王子大和田
1003m(13分)
-
ドラッグストア
セイムス大和田店
1013m(13分)
-
スーパー
グルメシティ八王子大和田店
1267m(16分)
-
幼稚園
かしわ幼稚園
1583m(20分)
-
小児科
仁和会クリニック大和田
1641m(21分)
-
市役所・区役所
石川事務所
2117m(27分)
-
駅
京王八王子駅
2139m(27分)
-
幼稚園
聖公会八王子幼稚園
2243m(29分)
- 月々の支払額
- 9.6円
- 購入希望物件価格
-
万円
- 頭金
-
万円
- 金利
-
%
- 返済額(ボーナス1回分)
-
万円
- 返済期間
-
年
物件の特徴
セールスポイント
~~こちらの物件は、弊社でなら仲介手数料無料でご紹介可能です~~
ポイント
◎北八王子駅徒歩13分 ◎内装リフォーム済 ◎2台駐車可能 ◎南道路 ◎南向き ◎3LDK
担当者のコメント
パノラマ画像
基本情報
設備条件
その他
周辺施設
支払いシミュレーション
※ボーナスは自動で年2回分で計算されます。
近隣の物件
八王子市 大谷町 中古戸建て
3,499万円
-
3LDK(101.64㎡)


秋山 里織
北八王子駅徒歩13分、喧騒をほど良く離れ落ち着き有る住宅地内の内装リフォーム済戸建て。2台駐車可能、南6m道路・陽当たりの良い南向き、全室6帖以上の快適住空間。吹抜けと勾配天井が開放感のある3LDK住宅です。